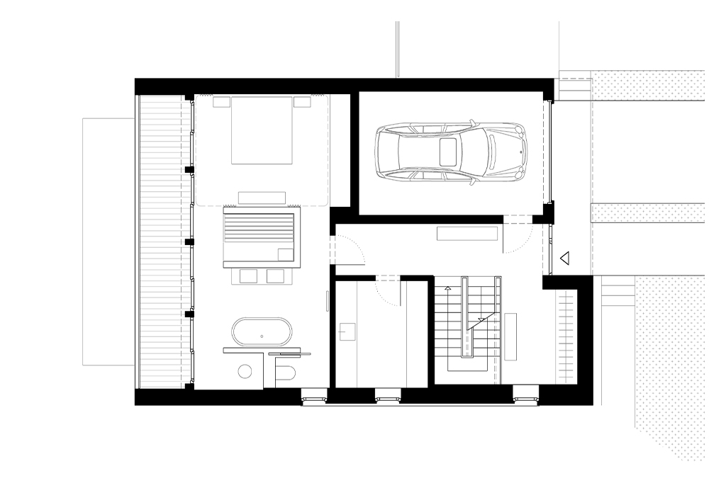
AW01
Einfamilienhaus am Asselborner Bach in Bergisch Gladbach
Auftraggeber
privat
Fertigstellung
2026
Leistungen
Objekplanung Leistungsphasen 1 bis 4 gem. HOAI
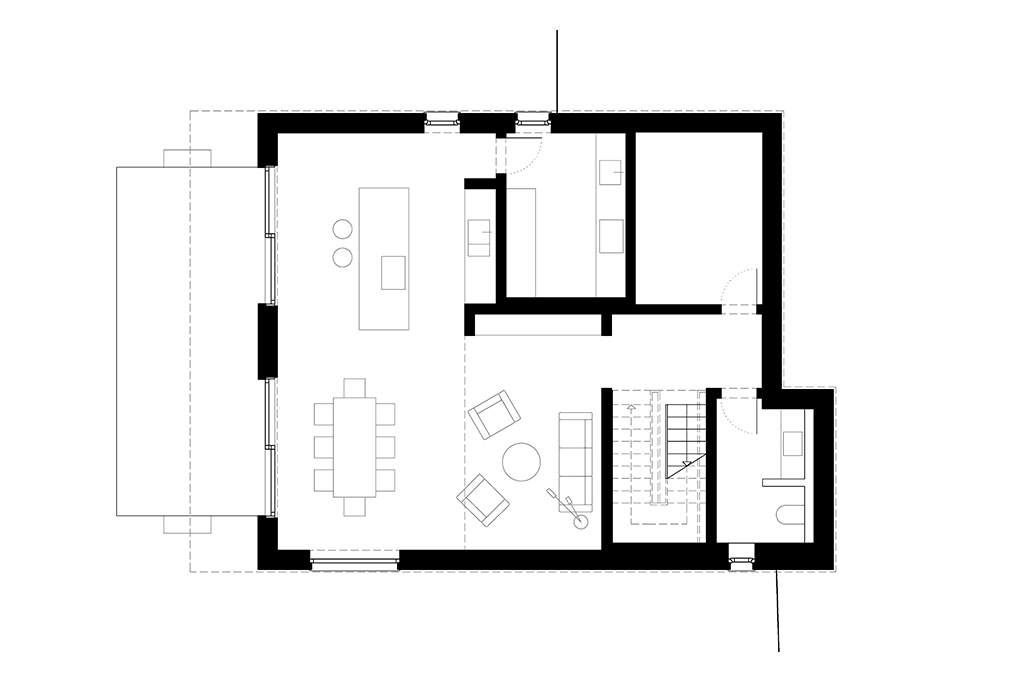
Einfamilienhaus am Asselborner Bach in Bergisch Gladbach
Auftraggeber
privat
Fertigstellung
2026
Leistungen
Objekplanung Leistungsphasen 1 bis 4 gem. HOAI